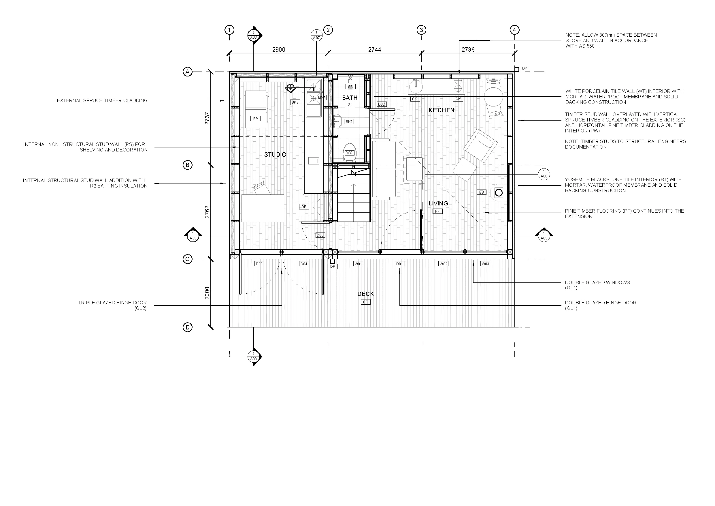
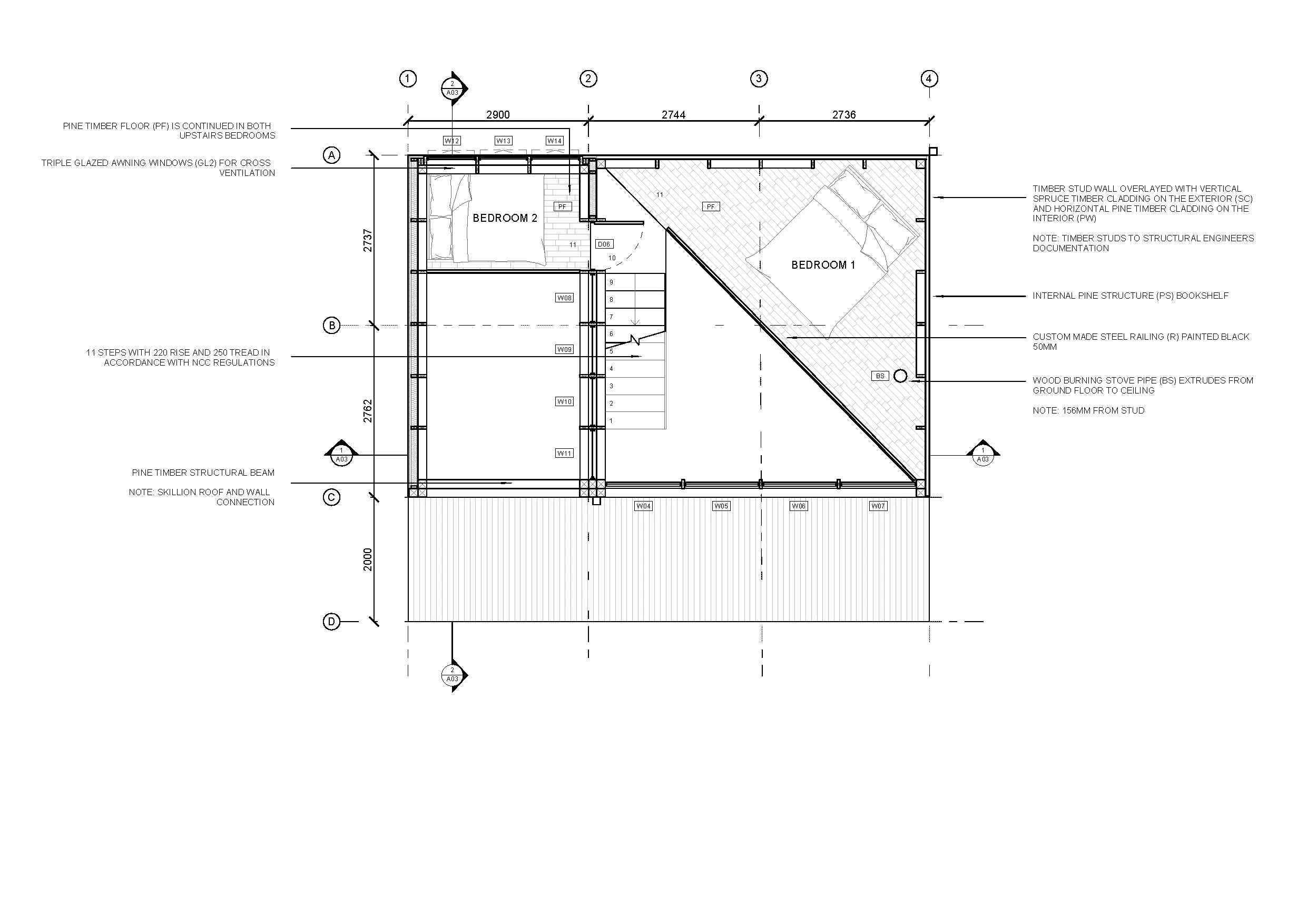
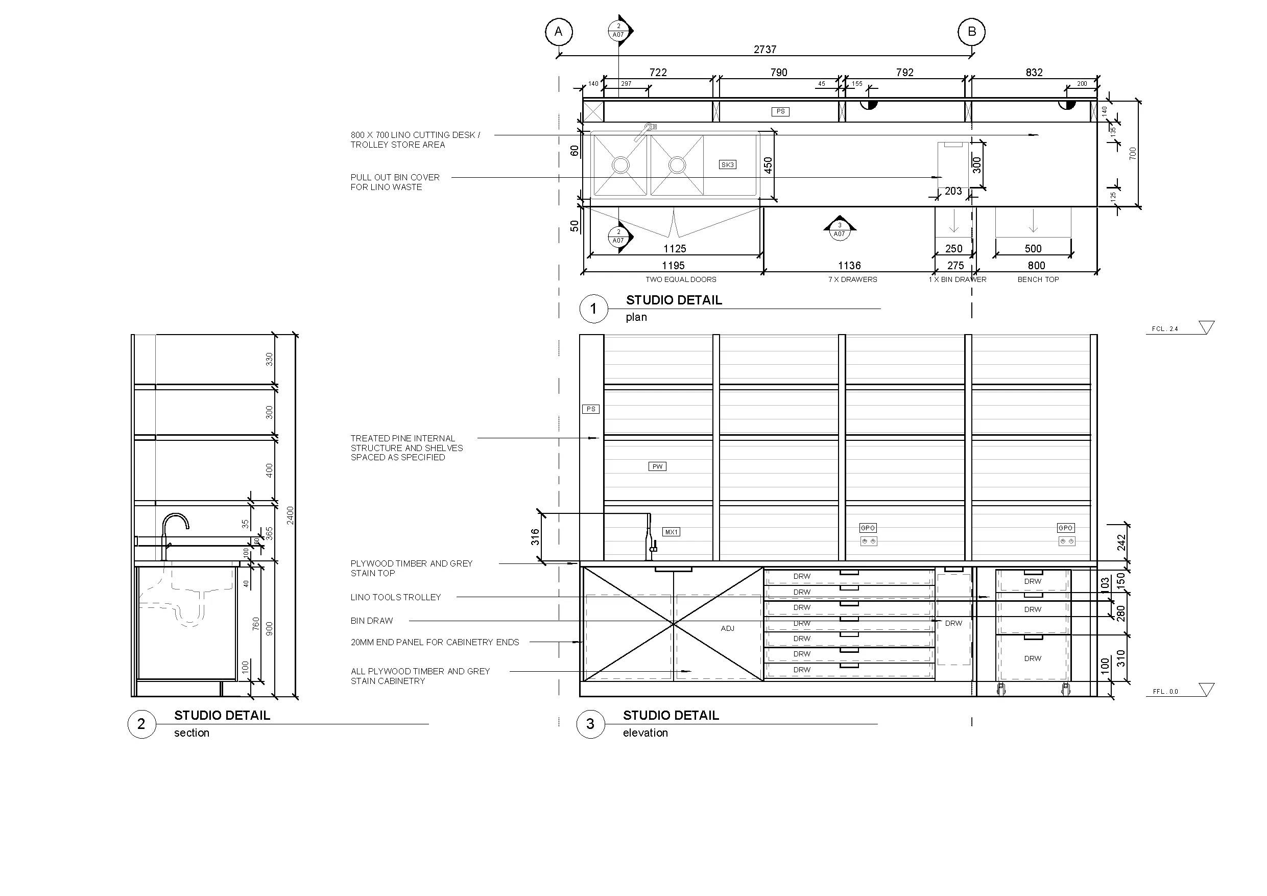
CONSTRUCTION

A comprehensive architectural study spanning environmental workflows, spatial narratives, and highly-detailed tectonic construction documents for CONSTRUCTION.
- Rhino 3D
- Adobe Suite
- AutoCAD
- Physical Modeling
Project Artifacts























A comprehensive architectural study spanning environmental workflows, spatial narratives, and highly-detailed tectonic construction documents for CONSTRUCTION.





















